Immobilien Übersicht
Anfrage
Ein geräumiges Einfamilienhaus mit viel Potenzial in Kirchlengern
32278 Kirchlengern
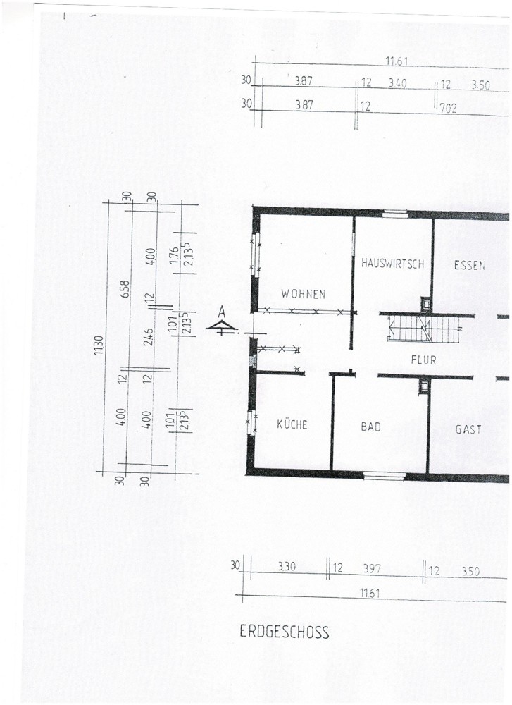
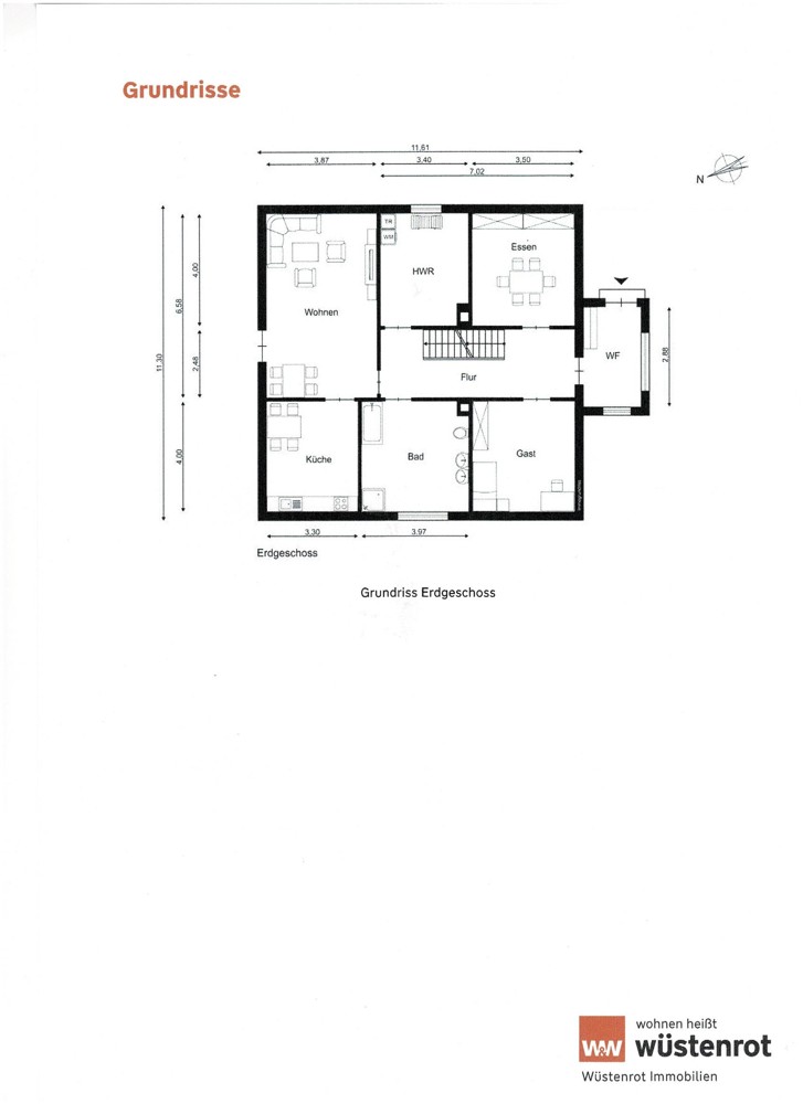
Grundriss Erdgeschoss1
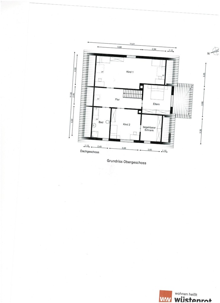
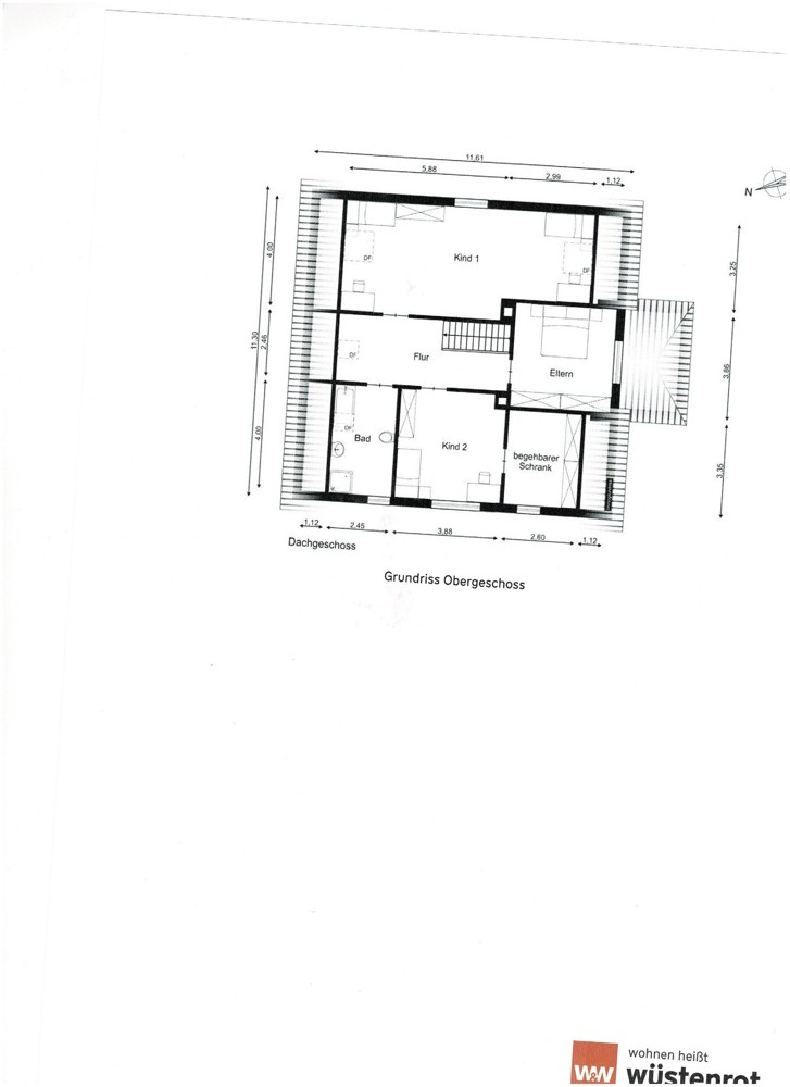
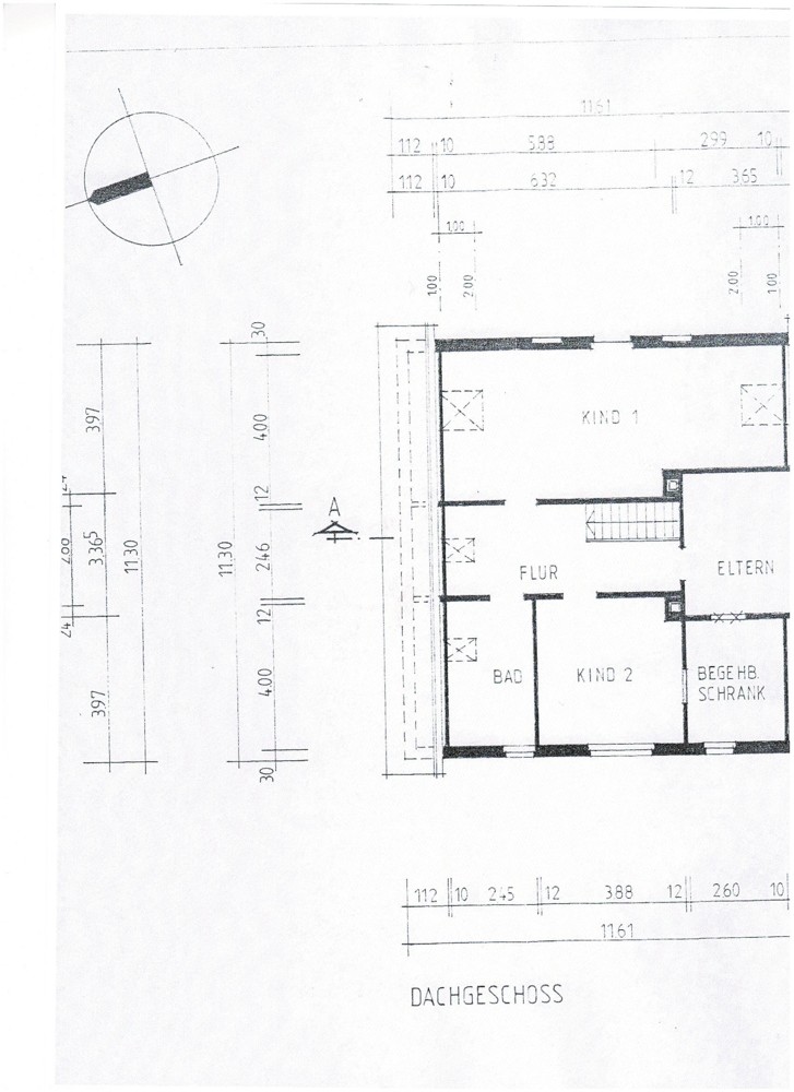
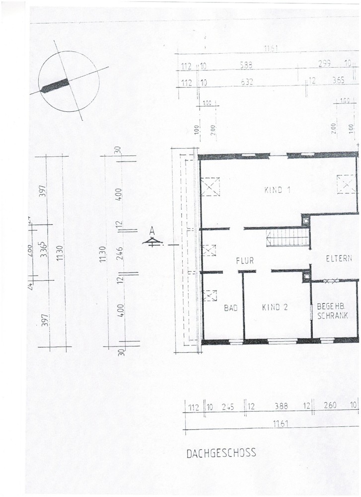
Grundriss Obergeschoss1
Grundrisse Haus
Haus Nordansicht
Haus Ostansicht
Haus Südansicht
Haus Westansicht
lageplan Elsestr
OG1
OG2
Querschnitt vom Haus1
- Preis: 270.000,00 €
- Fläche: 197,00 m2
- Grundstücksgröße: 674,00 m2
- Nutzfläche: 40,00 m2
- Zimmer: 7.00
- Ansprechpartner: Frau Kristina Mc Grane
- Telefon: 004952231897485
Das Objekt
Willkommen in diesem charmanten und modernisiertem Einfamilienhaus, das im Jahr 1906 erbaut und von 2005 und 2019 saniert wurde ,welches auf einem Grundstück von ca.674 m² liegt. Mit einer Wohnfläche von ca. 200 m², verteilt auf 2 Etagen, bietet dieses Haus ausreichend Platz für Familien.
Im EG erwarten Sie 4 helle Zimmer, die durch einen durchdachten Grundriss bestechen. Das Badezimmer ist mit einem Whirlpool ausgestattet. Im Erdgeschoss liegt die Küche zum Blick in den Garten. Am Wohnzimmer ist ein Kaminanschluss vorhanden, von dort ist der Zugang zur Terrasse ermöglich und bietet einen herrlichen Blick in den Garten.
Das OG im Maisonette-Stil beherbergt 3 weitere Zimmer. Ein vollständig saniertes Badezimmer mit Wanne runden das Angebot ab. Diese Etage könnte als zweite Wohneinheit genutzt werden und somit ideal als große Familie dienen.
Es befinden sich dort 2 zusätzliche Zimmer, welche man auch ideal als Büro nutzen könnte.
Der Keller ist halbunterkellert mit Stauraum.
Die Einfahrt mit mindestens zwei Stellplätzen, vor dem Haus gewöhnlich Parkraum unter dem Carport verfügbar.
Garten:
Der kaum einsehbare Garten lädt zum Verweilen ein und bietet ideale Bedingungen für Hobbygärtner oder Familien mit Kindern.
Ausstattung
Renovierungen:
Dachstuhl, Dämmung, Dachziegel, Alle Fenster und Türen komplett neu seit 2005
Kellergeschoss:
Heizungsanlage Buderus 2019
Gasleitung 2019
Heizungsleitung OG 2019
Erdgeschoss:
Fußbodenbelag überwiegend 2019
Fenster 2005
Kamin 2019
Küche 2018
WC (Neue Amaturen ect. 2019
Obergeschoss:
Dachdämmung 2019
Neue Türen und Zargen 2019
Trockenbauwände + Anstrich 2019
Elektr. Leitungen OG 2019
Heizungsleitungen OG 2019
Heizkörper 2019
Badezimmer komplett neu mit Whirlpool 2019
Fußboden 2019
Decke Dämmung, Putz, Anstrich 2019
Außen:
Carport 2005
Sat Anlage
Lage
Die Gemeinde Kirchlengern grenzt im Norden an die Gemeinde Hüllhorst (Kreis Minden-Lübbecke), im Osten an die Stadt Löhne, im Süden an die Gemeinde Hiddenhausen und im Westen an die Stadt Bünde (alle Kreis Herford).
Die nächstgelegenen Großstädte sind das 25 km südlich gelegene Bielefeld und das 40 km westlich gelegene Osnabrück. Die Gemeinde liegt 10 km nördlich der Kreisstadt Herford, 5 km westwärts der Stadt Löhne und 4 km östlich der Stadt Bünde.
Kirchlengern hat drei Grundschulen in Kirchlengern/Häver, Stift Quernheim und Südlengern. Die Erich-Kästner-Gesamtschule ist eine Zweigstelle der Gesamtschule in Bünde. Die Sekundarstufe II befindet sich ausschließlich am Standort Bünde. Außerdem gibt es eine Förderschule mit Schwerpunkt Lernen (Albert-Schweitzer-Schule), eine Berufs- und Berufsfachschule (Berufsbildungs-Zentrum Metall), die Musikschule der Gemeinde Kirchlengern sowie die Gesundheitsschule Kirchlengern.
Sonstige Angaben
Dieses Objekt wird provisionsfrei angeboten.
Die Umgebung bietet eine Vielzahl von Einkaufsmöglichkeiten, darunter einen Penny-Markt und eine Bäckerei, die bequem zu Fuß erreichbar sind. Auch Ärzte und Apotheken sind mit dem Auto in nur 5 Minuten erreichbar, was den Alltag zusätzlich erleichtert. Zudem gibt es in der Nähe Grünflächen, die zu Spaziergängen und Freizeitaktivitäten einladen.
Dieses Exposé wurde nach bestem Wissen erstellt. Grundlage der vorstehenden Angaben sind Informationen und/oder Unterlagen, welche uns Seitens des Eigentümers oder Dritter zur Verfügung gestellt worden sind. Eine Gewähr für die Richtigkeit der Angaben kann nicht übernommen werden.
Die Liegenschaft wird komplett frei übergeben und bietet sich somit für mehrere Generationen unter einem Dach perfekt an.
Der Energieausweis wird bei Besichtigung vorgelegt!
Sie spielen mit dem Gedanken, Ihr Haus zu verkaufen ? Gerne unterstützen wir Sie dabei.
Telefonisch erreichen Sie uns grundsätzlich rund um die Uhr unter der Festnetz-Nr. 05223-1897485 oder aber Mobil 0176-42134711
Mc Grane Immobilien
Inhaber Kristina Mc Grane
Hochstr. 17
32120 Hiddenhausen
Tel: 05223-1897485
0176-42134711
E-Mail: mcgrane@arcor.de
info@mcgrane-immobilien.de
UsT-IdNr:324/5881/1445
Zuständige Aufsichtsbehörde
für die Tätigkeit nach § 34 c GeWo
IHK Bielefeld